Projektbeschreibung:
- Rückbau des an gleicher Stelle stehenden Parkhauses aus den 1960-er Jahren
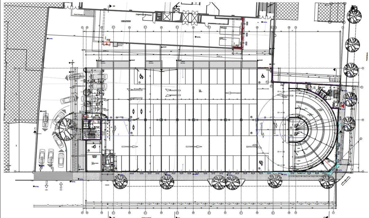
- Errichtung eines Neubaus für das KARSTADT-Warenhaus auf 6 Parkebenen mit 485 Stellplätzen, davon 15 Stellplätze behindertengerecht
- Fassadenbild geprägt durch Nachempfindung von drei Einzelhäusern in Anlehnung an die in der Nachbarschaft vorhandene historische Villenstruktur (städtebauliche Vorgabe)
- Erschließung aller Parkebenen über eine im Baukörper integrierte Spindelrampe und zwei entgegengesetzt angeordnete Fluchttreppenhäuser mit je einem behindertengerechten Aufzug
- Anbindung des Parkhauses auf drei Ebenen an das Warenhaus mit barrierefreien Übergängen
- Untergeschoss und Treppenhäuser aus Stahlbetonwänden sowie -decken
- übrige Bauteile als Stahlskelettkonstruktion mit vorgehängter Fassade – Wechselspiel aus verzinkten Gitterrostelementen und profilierten Betonfertigteilen, teilweise eingefärbt, teilweise mit Klinker versehen
Planungsdaten
- Bruttogrundfläche: 15.292 m²
- Bruttorauminhalt: 39.999 m³
- Nettogrundfläche: 14.891 m²
- Nutzfläche: 12.474 m²
- Planungszeit: 06.2011 bis 05.2015
- Bauzeit: 02.2015 bis 12.2015
- Tag der Inbetriebnahme: 09.12.2015
Leistungsumfang laut HOAI
- Objektplanung Gebäude und Innenräume: LPH 1 – 5
- Objektplanung Freianlagen: LPH 1 – 5
- Fachplanung Tragwerksplanung: LPH 1 – 6
- Brandschutz
Bauvorhaben
Neubau Parkhaus Karstadt
61348 Bad Homburg v. d. Höhe
Bauherr
Mainstreet GmbH & Co. Objekt Bad Homburg KG
36251 Bad Hersfeld







