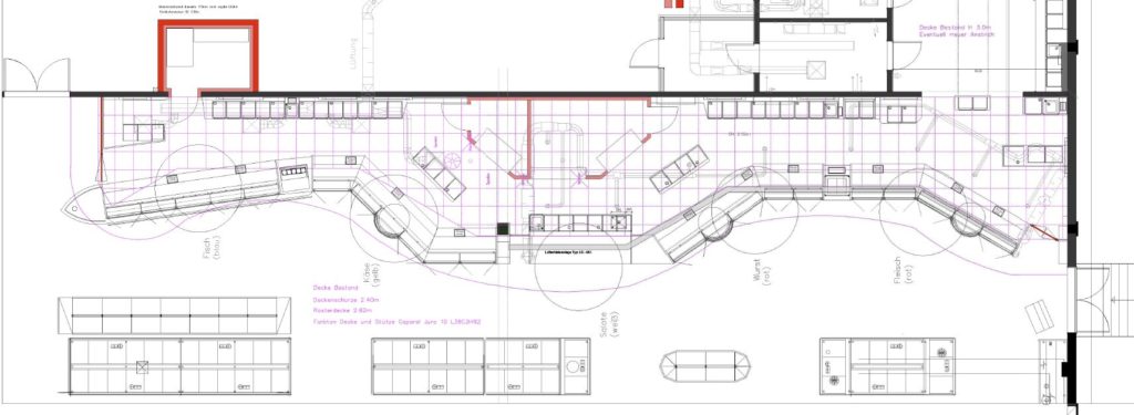
Projektbeschreibung:
- Umstrukturierung und gestalterische Aufwertung der Frischetheke im Edeka-Markt Duderstadt
Planungsdaten
- Planungszeit: 01.2015 bis 01.2016
- Bauzeit: 10.2015 bis 02.2016
- Tag der Inbetriebnahme: 01.02.2016
Leistungsumfang laut HOAI
- Objektplanung Gebäude und Innenräume: LPH 5 – 8
Bauvorhaben
Umbau Frischetheke EDEKA- Markt
37115 Duderstadt
Bauherr
EDEKA Gebrüder Gotthardt OHG
37115 Duderstadt




