Projektbeschreibung:
- Sanierung, Instandsetzung und Umbau eines ehemaligen Internatskomplexes im Stadtzentrum von Mühlhausen zu einem Mehrfamilienhaus
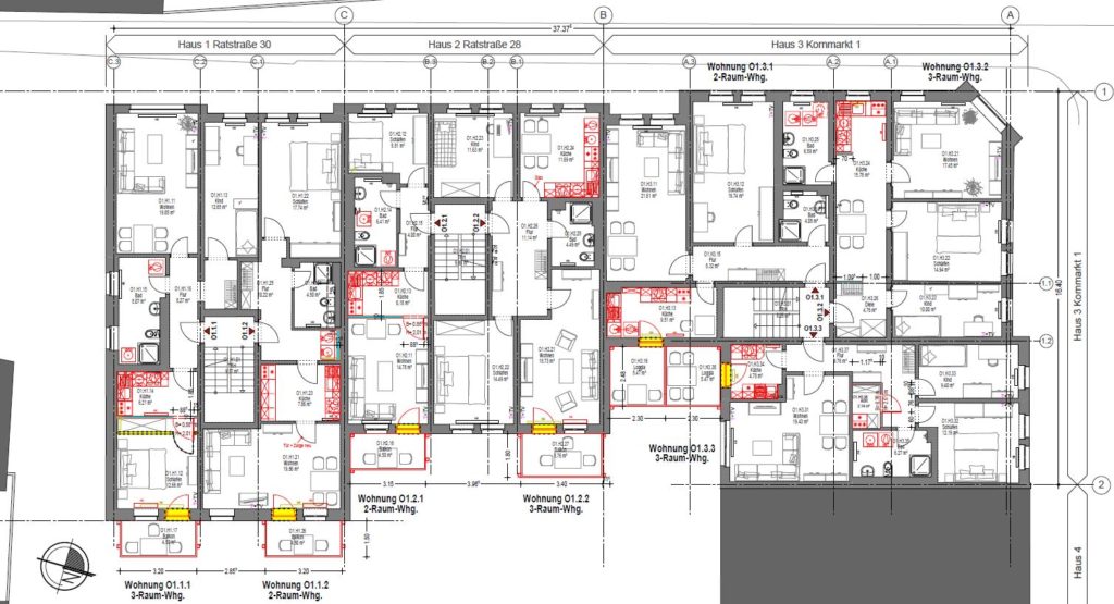
- Gebäudeensemble, bestehend aus 4 Einzelhäusern mit je 4 Wohnetagen
- Umstrukturierung der vorhandenen Grundrissstruktur zur Schaffung von 33 Mieteinheiten (2- und 3-Raum-Wohnungen) rollstuhlgerechte Ausbildung zweier Mieteinheiten
- Anbau von Balkonanlagen an den zum Innenhof ausgerichteten Fassaden in den Obergeschossen zur Steigerung der Wohn- und Lebensqualität
- hohe Belichtung bzw. großzügiger Charakter der Wohnungen im Erdgeschoss durch Ausstattung mit französischen Fenstern modern ausgestattete Bäder und Küchen
Planungsdaten
- Bruttogrundfläche: 4.421 m²
- Bruttorauminhalt: 11.879 m³
- Nettogrundfläche: 3.639 m²
- Nutzfläche: 2.970 m²
- Wohnfläche: 2.225 m²
- Planungszeit: 06.2016 bis 05.2018
- Bauzeit: 06.2018 bis 02.2019
- Tag der Inbetriebnahme: vor. 03.2019
Leistungsumfang laut HOAI
- Objektplanung Gebäude und Innenräume: LPH 1 – 8
- Objektplanung Freianlagen: LPH 1 – 8
- Fachplanung Tragwerksplanung: LPH 1 – 6
- Therm. Bauphysik/Baul. Schallschutz
Bauvorhaben
Umbau Internatsgebäude zu Mehrfamilienhaus
99974 Mühlhausen
Bauherr
Privat



