Projektbeschreibung:
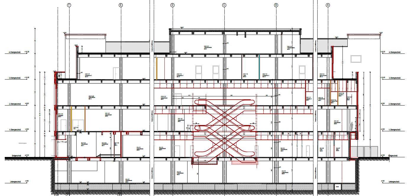
- Umstrukturierung und gestalterische Aufwertung des ehemaligen Horten-Kaufhauses aus den 1970er Jahren im Stadtzentrum von Gießen
- Unterteilung von ca. 12.000 m² Verkaufsfläche in kleinere Mieteinheiten
- im 3. OG Errichtung von Probebühnen und -räumen für das Stadttheater Gießen
- Rückbau der bestehenden Eiermann-Fassade aus Aluminium-kacheln
- umfängliche Erneuerung der Außenhaut durch Verbindung und Zusammenspiel von Betonwerkstein, großflächigen Verglasungen und energetisch optimiertem WDV-System
- Treppenhäuser, höhenseitig gestaffelt und ergänzt durch eine Edelstahlgewebe-Verkleidung, gliedern den Baukörper und bilden dadurch architektonische Zäsuren in der Fassade
Planungsdaten
- Bruttogrundfläche: 23.693 m²
- Bruttorauminhalt: 113.062 m³
- Nettogrundfläche: 22.391 m²
- Nutzfläche: 18.370 m²
- Verkaufsfläche:12.300 m²
- Planungszeit: 06.2013 bis 10.2014
- Bauzeit: 05.2014 bis 09.2015
- Tag der Inbetriebnahme: 02.09.2015
Leistungsumfang laut HOAI
- Objektplanung Gebäude und Innenräume: LPH 1 – 9
- Objektplanung Freianlagen: LPH 1 – 9
- Fachplanung Tragwerksplanung: LPH 1 – 6
- Therm. Bauphysik/ Baul. Schallschutz
Bauvorhaben
Revitalisierung Geschäftshaus Katharinen-Karree
35390 Gießen
Bauherr
ROSCO GmbH & Co. KG
36251 Bad Hersfeld






